
| 所在地 | 泉南市樽井4丁目22-6 |
|---|---|
| 最寄駅 | 南海本線 樽井駅 徒歩 8分 |
| 小学校区 | 樽井小学校 |
| 中学校区 | 泉南中学校 |
| 建築年月 | 1989年 |
| 構造 | 鉄骨造3階建 |
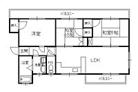
| 専有面積 | 60㎡ (18.15坪) |
| 間取 | 3LDK |
| 賃料 | 5.5万円 |
| 敷金 | 0円 |
| 礼金 | 0円 |
| 駐車場 | 5000円 |
| 保険等 | 火災保険加入要:2万円(2年) |
| 契約条件等 | 賃貸保証会社加入要 初回保証料:賃料総額の60% 更新料:10,000円(1年) |
| その他一時金 | 鍵交換代1.1万円(税込)必要 |
| 設備・条件等 | バス・トイレ別 / 温水洗浄便座 / 洗面所独立 / プロパンガス / 水洗トイレ / 室内洗濯機置場 / TVモニタ付インターホン / 駐車場 / 駐輪場 / 敷金・礼金ゼロ / ペット相談 / 日当たり良好 |
| その他の設備 | 照明 シューズボックス |
| 備考 | ※間取や室内写真等が現況と異なる場合は現況優先になります。 |
※ストリートビューと現況が異なる場合は現況優先になります。